AT Nguyen Van Troi
Completion Year: 2020
Category: Architecture, Interior
Gross Built Area (m2/ ft2): 190m2
Project Location: Dalat, Vietnam
Usage: Cafe
Design team: Lam Bao, Nguyen Anh Dung
Photography: xuong xep
Category: Architecture, Interior
Gross Built Area (m2/ ft2): 190m2
Project Location: Dalat, Vietnam
Usage: Cafe
Design team: Lam Bao, Nguyen Anh Dung
Photography: xuong xep
[press]
404 error
[eng]
Situated on Nguyen Van Troi St, the construction's previous state was a small scale coffee shop. After further inspection, it became clear that the area usage was lacking subtlety. With that in mind, our approach to the problem consists of optimizing more surface area in addition to indoor lighting.
Furthermore, we try place our focus on small details in order to create connection between the construction with the user, in which they can interact and thrive. To put greater emphasis on the issue, old materials had been recycled and given new purposes, while still maintaining its old charming vibe, as well as solving the economical equation laid out by the investor.
Isometric
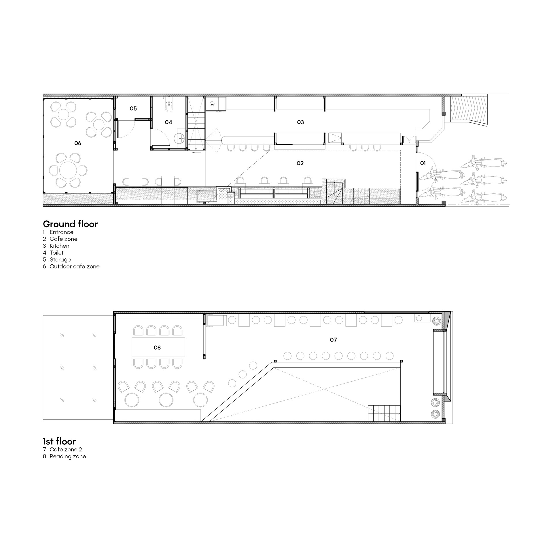
Floor plan